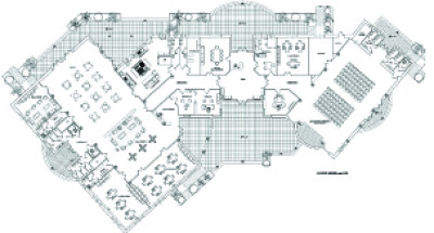
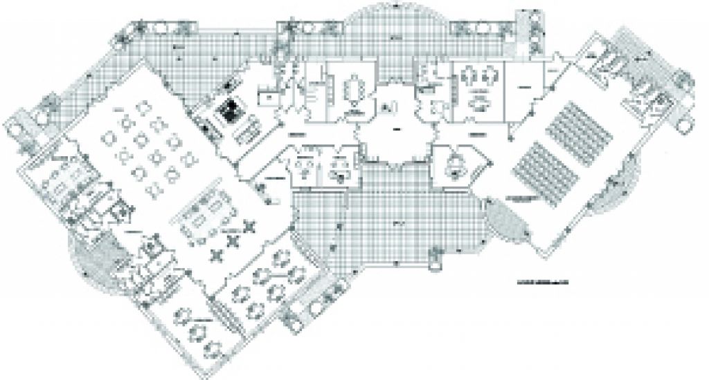
Erigendo Centro Polivalente con Mensa Sociale: posa della prima pietra
Martedì 29 dicembre 2015 - ore 15.30 - in località "Casavecchia", nei pressi del Mercato Ortofrutticolo, si terrà la cerimonia ufficiale della posa della prima pietra dell'erigendo Centro...

Dettagli della notizia
La Cittadinanza è invitata a partecipare!
Media
Documenti e link
Documenti allegati: posa prima pietra centro sociale
Opzioni di stampa:
